咨詢熱線
15231779603
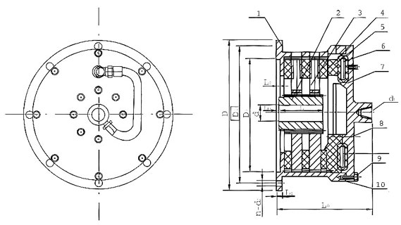
QPBZ型氣動盤式離合器 JB/T7005-93
本氣動盤式離合器,傳遞力矩大,離合迅速,可靠、結構簡單,維修方便。適用于頻繁離合的場合。此離合器傳動轉矩520~82000N.m、許用轉速為1800~500r/min,環境溫度-20~+80℃。
1、殼體;2、軸套;3、內盤;4、摩擦盤;5、壓板;6、氣囊;7、端蓋;8、彈簧;9、螺釘;10、墊片;
QPL型氣動盤式離合器基本性能參數和主要尺寸 mm
注:1、動態力矩為離合器的全部傳動能力。選用時按照額定力矩直接選用。2、總間隙按72也調整。3、鍵槽尺寸按GB3852。
型號
制動力矩
(當氣壓為0.49MPa時)N.m許用轉速
nd
H7L
D
D1
D2
H8n-d2
d1
L0
L1
L2
L3
轉動慣量(軸套和內盤)
kg.m2重量
kg
額定
動態
r/min
QPL1
312
520
1800
45
82
220
203
190
4-9
RC1/2
178
6
1.5
2
0.138
20
QPL2
660
1100
1750
55
82
310
280
220
6-13.5
RC3/4
192
13
6
8
0.357
32
QPL3
1540
2560
1400
63
110
400
375
295
6-17.5
235
16
10
6
1.42
75
QPL4
2680
4420
1200
80
114
470
445
370
8-17.5
248
16
10
10
2.85
105
QPL5
4160
6900
1100
100
120
540
510
410
12-17.5
RC1
260
16
10
10
5.25
148
QPL6
6320
10400
1000
120
120
590
560
470
12-17.5
280
16
10
11
7.6
171
QPL7
8600
14300
900
130
130
685
648
540
12-17.5
305
19
8
19
14.6
264
QPL8
15100
25000
700
150
130
760
730
620
12-17.5
RC1'/4
315
19
6
19
26.8
365
QPL9
16800
28000
650
160
175
830
800
700
16-17.5
350
19
6
19
35
426
QPL10
32000
53000
600
180
180
940
900
775
18-22
RC1'/2
366
19
6
19
62.5
640
QPL11
49600
82000
500
220
230
1105
1065
925
18-88
404
22
5
16
133
905
聯系電話:
手機號碼:
企業Q Q:
聯系郵箱:
公司地址: