咨詢熱線
15231779603
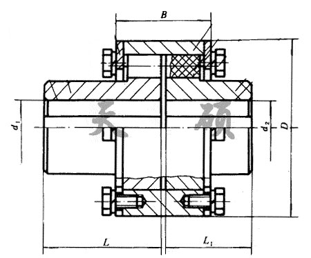
產品描述:彈性柱銷齒式聯軸器具有以下特點:(1)ZL型彈性柱銷齒式聯軸器與齒式聯軸器相比,結構簡單,組成零件較少,制造較方便,不用齒輪加工機床.傳遞轉矩大
15231779603

彈性柱銷齒式聯軸器具有以下特點:(1)ZL型彈性柱銷齒式聯軸器與齒式聯軸器相比,結構簡單,組成零件較少,制造較方便,不用齒輪加工機床。傳遞轉矩大,在相同轉矩時回轉直徑大多數比齒式聯軸器小,體積小,質量輕,可部分代替齒式聯軸器。(2)彈性柱銷齒式聯軸器維修方便,壽命較長,拆下檔板即可更換尼龍柱銷。尼龍柱銷為自潤材料,不需潤滑,不僅節省潤滑油,而且凈化工作環境。(3)彈性柱銷齒式聯軸器減振動能差,噪聲較大。彈性柱銷齒式聯軸器是利用若干非金屬材料制成的柱銷,置于兩半聯軸器與外環內表面之間的對合孔中,通過柱銷傳遞轉矩實現兩半聯軸器聯接,彈性柱銷齒式聯軸器具有一定補償兩軸相對偏移的性能,適用于中等和較大功率傳動,不適用于對減振有一定要求和噪聲需要嚴加控制的工作部位。
| 型號 | 公稱扭矩 Tn(N.m) |
許用轉速 [n]r/min |
軸孔直徑 d 1 d2 | 軸孔配合長度 | D | B | 轉動慣量 Kg.m 2 | 質量 m Kg | |
| Y型 | J1 型 | ||||||||
| L | L 1 | ||||||||
| ZL1 | 100 | 4000 | 12 14 | 32 | 27 | 76 | 42 | 0.0004 | 0.80 |
| 16 18 | 42 | 30 | |||||||
| 19 | |||||||||
| 20 22 | 52 | 38 | |||||||
| 24 | |||||||||
| ZL2 | 250 | 4000 | 16 18 | 42 | 30 | 92 | 50 | 0.003 | 3.23 |
| 19 | |||||||||
| 20 22 | 52 | 38 | |||||||
| 24 | |||||||||
| 25 28 | 62 | 44 | |||||||
| 30 32 | 82 | 60 | |||||||
| ZL3 | 630 | 4000 | 25 28 | 62 | 44 | 118 | 69 | 0.011 | 6.57 |
| 30 32 | 82 | 60 | |||||||
| 35 38 | |||||||||
| 40 42 | 112 | 84 | |||||||
| ZL4 | 1600 | 4000 | 40 42 | 112 | 84 | 158 | 89 | 0.046 | 14.8 |
| 45 48 | |||||||||
| 50 55 | |||||||||
| 56 | |||||||||
| 60 | 142 | 107 | |||||||
| ZL5 | 4000 | 4000 | 50 55 | 112 | 84 | 192 | 89 | 0.114 | 24.8 |
| 56 | |||||||||
| 60 63 | 142 | 107 | |||||||
| 65 70 | |||||||||
| 71 75 | |||||||||
| 80 | 172 | 132 | |||||||
| ZL6 | 6300 | 3300 | 60 63 | 142 | 107 | 230 | 111 | 0.28 | 42.5 |
| 70 71 | |||||||||
| 75 | |||||||||
| 80 85 | 172 | 132 | |||||||
| 90 95 | |||||||||
| ZL7 | 10000 | 2900 | 70 71 | 142 | 107 | 260 | 113 | 0.56 | 66.3 |
| 75 | |||||||||
| 80 85 | 172 | 132 | |||||||
| 90 95 | |||||||||
| 100 110 | 212 | 167 | |||||||
| ZL8 | 16000 | 2500 | 80 85 | 172 | 132 | 300 | 136 | 1.21 | 107.3 |
| 90 95 | |||||||||
| 100 110 | 212 | 167 | |||||||
| 120 | |||||||||
| 125 130 | 252 | 202 | |||||||
| ZL9 | 2500 0 | 2300 | 90 95 | 172 | 132 | 335 | 146 | 1.98 | 140.9 |
| 100 110 | 212 | 167 | |||||||
| 120 | |||||||||
| 125 | 252 | 202 | |||||||
| ZL10 | 31500 | 2100 | 130 140 | 212 | 167 | 355 | 151 | 2.85 | 180.9 |
| 150 | |||||||||
| 100 110 | 252 | 202 | |||||||
| 120 | |||||||||
| 125 | 302 | 242 | |||||||
| 130 140 150 | |||||||||
| ZL11 | 40000 | 2000 | 160 170 | 212 | 167 | 380 | 170 | 3.9 | 219.3 |
| 110 120 | 252 | 202 | |||||||
| 125 | |||||||||
| 130 140 150 | 302 | 242 | |||||||
| 160 170 180 | |||||||||
| ZL12 | 63000 | 1700 | 130 140 | 252 | 202 | 445 | 183 | 9.2 | 371.4 |
| 150 | |||||||||
| 160 170 | 302 | 242 | |||||||
| 180 | |||||||||
| 190 200 | 352 | 282 | |||||||
| ZL13 | 100000 | 1500 | 150 | 252 | 202 | 515 | 218 | 15.6 | 470 |
| 160 170 | 302 | 242 | |||||||
| 180 | |||||||||
| 190 200 | 352 | 282 | |||||||
| 220 | |||||||||
| 240 | 410 | 330 | |||||||
| ZL14 | 125000 | 1400 | 170 180 | 320 | 242 | 560 | 218 | 27.8 | 708 |
| 190 200 | 352 | 282 | |||||||
| 220 | |||||||||
| 240 250 | 410 | 330 | |||||||
| 260 | |||||||||
| ZL15 | 160000 | 1300 | 190 200 | 352 | 285 | 590 | 238 | 33.4 | 768 |
| 220 | |||||||||
| 240 250 | 410 | 330 | |||||||
| 260 | |||||||||
| 280 300 | 470 | 380 | |||||||
| ZL16 | 250000 | 100, 0 | 220 | 352 | 282 | 695 | 262 | 69.9 | 1169 |
| 240 250 | 410 | 330 | |||||||
| 260 | |||||||||
| 280 300 | 470 | 380 | |||||||
| 320 | |||||||||
| 340 | 550 | 450 | |||||||
| ZL17 | 315000 | 950 | 240 250 | 410 | 330 | 768 | 282 | 122.7 | 1664 |
| 260 | |||||||||
| 280 300 | 470 | 380 | |||||||
| 320 | |||||||||
| 340 360 | 550 | 450 | |||||||
| 380 | |||||||||
| ZL18 | 400000 | 850 | 250 260 | 410 | 330 | 860 | 300 | 202.7 | 2193 |
| 280 300 | 470 | 380 | |||||||
| 320 | |||||||||
| 340 360 | 550 | 450 | |||||||
| 380 | |||||||||
| 400 420 | 650 | 540 | |||||||
| ZL19 | 630000 | 750 | 280 300 | 470 | 380 | 970 | 320 | 341.2 | 2901 |
| 320 | |||||||||
| 340 360 | 550 | 450 | |||||||
| 380 | |||||||||
| 400 420 | 650 | 540 | |||||||
| 440 450 | |||||||||
| ZL20 | 1000000 | 650 | 320 | 470 | 380 | 1156 | 351 | 710 | 4251 |
| 340 360 | 550 | 450 | |||||||
| 380 | |||||||||
| 400 420 | 650 | 540 | |||||||
| 440 450 | |||||||||
| 460 480 | |||||||||
| 500 | |||||||||
| ZL21 | 1600000 | 530 | 380 | 550 | 450 | 1440 | 355 | 1948 | 7514 |
| 400 420 | 650 | 540 | |||||||
| 440 450 | |||||||||
| 460 480 | |||||||||
| 500 | |||||||||
| 530 560 | 800 | 680 | |||||||
| 600 630 | |||||||||
| ZL22 | 2000000 | 500 | 420 440 | 650 | 540 | 1520 | 396 | 2931 | 10148 |
| 450 460 | |||||||||
| 480 500 | |||||||||
| 530 560 | 800 | 680 | |||||||
| 600 630 | |||||||||
| 670 710 | 900 | 780 | |||||||
| 750 | |||||||||
| ZL23 | 2500000 | 460 | 480 500 | 650 | 540 | 1638 | 430 | 4379 | 13026 |
聯系電話:
手機號碼:
企業Q Q:
聯系郵箱:
公司地址: